Наша компания занимается изготовлением изделий из металла. В ассортименте присутствует ряд товаров, на которых мы специализируемся:
- почтовые ящики
- мангалы
- металлические стеллажи
- и многое другое
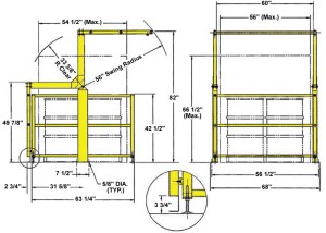
Наличие собственной производственной базы, квалифицированного персонала и многолетнего опыта позволяет нам браться за серьезные индивидуальные разработки. Для нашего постоянного клиента мы разработали модуль безопасной загрузки
Модуль безопасной загрузки: паллетные ворота для мезонина
В современном складском хозяйстве основное внимание уделяется безопасности сотрудников и эффективности процессов погрузки и выгрузки. Одним из ключевых компонентов, обеспечивающих эти аспекты, является модуль безопасной загрузки, представленный паллетными воротами. Эти конструкции играют важную роль в минимизации рисков, связанных с работой погрузочно-разгрузочной техники.
Что такое паллетные ворота?

Паллетные ворота — это специализированные устройства, предназначенные для защиты работников, находящихся на высоте, в зонах, где осуществляется активная деятельность погрузчиков. Отличаясь от классических распашных и сдвижных ворот, паллетные ворота предлагают более высокий уровень безопасности, создавая барьер между рабочими зонами и опасными участками склада.
Основные функции паллетных ворот
Главная цель паллетных ворот заключается в защите сотрудников от потенциально опасных ситуаций. Эти конструкции изолируют работников, находящихся вблизи работающих погрузчиков, предотвращая доступ к опасным зонам. Это особенно важно для рабочих, находящихся на мезонинных платформах или стеллажах, где при падении грузов высока вероятность получения травм.

Паллетные ворота также упрощают процесс загрузки и разгрузки товаров. Операторы имеют возможность открывать и закрывать ворота без необходимости приближаться к краю мезонина, что снижает риск случайного падения.
Конструктивные особенности и преимущества
Модуль безопасной загрузки включает перекидные ворота, которые могут иметь различные конструкции, часто с рамой, использующей три оси вращения. Эта трехосевая система позволяет предотвратить «вылет» рамы за пределы мезонина, что особенно важно для обеспечения максимальной безопасности.

Благодаря такой конструкции, паллетные ворота обеспечивают также большую высоту для грузов, что делает погрузочные и разгрузочные операции более эффективными. Рабочие могут перемещать более объемные и тяжелые грузы, не беспокоясь о физическом вмешательстве в процесс.
Влияние на производительность
Установка модулей безопасной загрузки с паллетными воротами позволяет снизить время на выполнение операций, связанных с транспортировкой товаров. Более того, безопасность на рабочем месте улучшает моральный дух сотрудников, что позитивно сказывается на общих показателях производительности.
Кроме того, использование таких ворот может снизить количество страховых случаев и произойти уменьшение затрат, связанных с травмами на рабочем месте. Кодекс безопасности на складах требует не только наличия защитных структур, но и их эффективного функционирования, что делает паллетные ворота востребованным решением.
Заключение
Модуль безопасной загрузки и паллетные ворота — это не просто элементы складской инфраструктуры, а важные компоненты, способствующие безопасному и эффективному выполнению рабочих процессов.
Они обеспечивают защиту сотрудников, повышают производительность и способствуют созданию безопасной рабочей среды. В условиях растущих требований к безопасности на складах и логистических центрах их значимость будет только возрастать.
Поэтому рассмотрение возможности интеграции паллетных ворот в вашу складскую систему — это шаг к модернизации и повышению безопасности ваших операций.
Для того, чтобы купить модуль безопасной загрузки, свяжитесь с нами удобным для Вас способом и мы с радостью возьмемся за Ваш заказ.





